Wohnen in einem Stück Merseburger Geschichte.

Mitten in Merseburg und dennoch ruhig liegt dieses reihenhausartige Anwesen mit einer über 500jährigen Geschichte. Es ist Teil des historischen Benediktiner-Kloster-Ensembles und diente auch dem ehemaligen kaiserlichen Husarenregiment als Nebengebäude.

Das Haus wurde vor einigen Jahren komplett saniert und innen völlig neu zu drei hochwertig ausgestatteten, geräumigen Wohnungen ausgebaut.

Zur Zeit ist leider keine Wohnung frei.

Wohnen in einem Stück Merseburger Geschichte.

Mitten in Merseburg und dennoch ruhig liegt dieses reihenhausartige Anwesen mit einer über 500jährigen Geschichte. Es ist Teil des historischen Benediktiner-Kloster-Ensembles und diente auch dem ehemaligen kaiserlichen Husarenregiment als Nebengebäude.

Das Haus wurde vor einigen Jahren komplett saniert und innen völlig neu zu drei hochwertig ausgestatteten, geräumigen Wohnungen ausgebaut. Eine davon, die auf der dem Kloster zugewandte Seite, ist ab 1.8.2021 zu vermieten.

Austattung

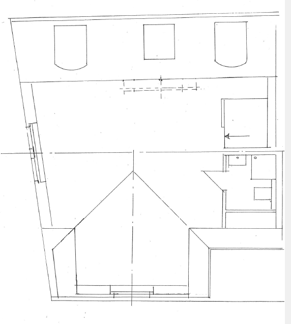
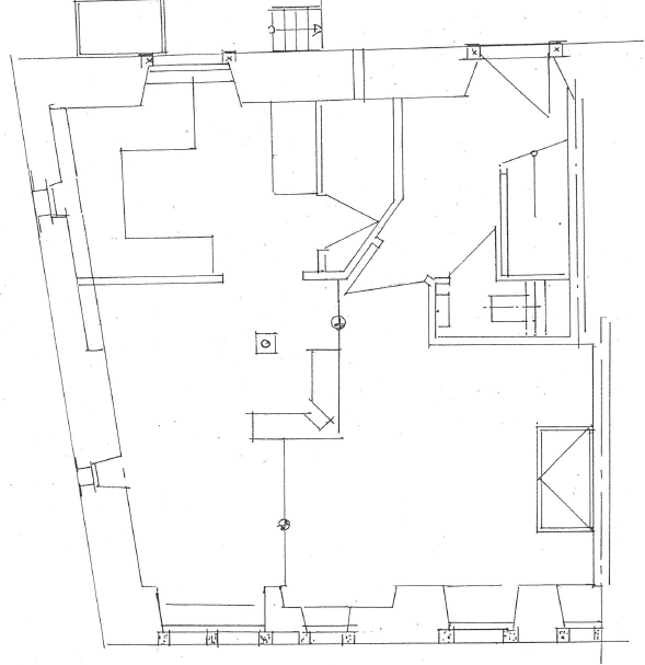
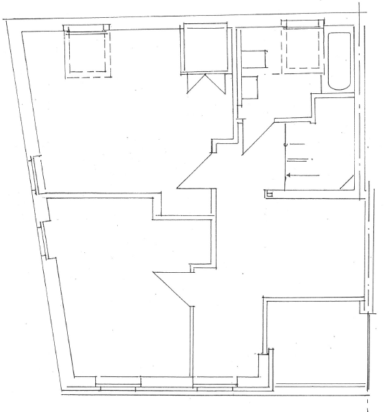
Grundrisse

Hinweis: Die Grundrissskizzen stammen aus der Bauphase. Die tatsächliche Raumaufteilung weicht minimal davon ab.

Fotos

Miete

Das Haus ist ab 1.8.2021 neu zu vermieten.
Die Objektmiete beträgt kalt 950€ mtl. (inkl. MwSt.)

Besichtigungen sind ab Mitte Mai nach Vereinbarung möglich.

Sind Sie an dieser Wohnung interessiert? Kontaktieren Sie mich bitte möglichst erst per Email inkl. Ihrer Telefonnummer.
Frank Noack: noack@forHeads.de, 01774058666 (bitte nicht vor 13:00 Uhr)

Frank Noack, Kloster 8, 06217 Merseburg, noack@forHeads.de, 01774058666